
Đồng chí Võ Chí Sĩ – Trưởng phòng QLĐT UBND TP. Phú Quốc phát biểu tại buổi công bố quy hoạch
Thực hiện Nghị quyết 11-NQ/ĐH ngày 17/10/2020 của Đại Hội Đại Biểu Đảng Bộ Tỉnh Kiên Giang lần thứ XI về việc thực hiện các mục tiêu phát triển kinh tế - xã hội nhiệm kỳ 2021 - 2050, theo đó, Cụm Công nghiệp Hàm Ninh được tập trung đầu tư để đưa vào hoạt động trong giai đoạn 2021-2025.
Việc thành lập CCN Hàm Ninh là phù hợp với Quy hoạch phát triển ngành công nghiệp và quy hoạch phát triển CCN của Thành phố Phú Quốc theo Quyết định số 633/QĐ-TTg ngày 11/5/2010 của Thủ tướng Chính phủ. Trong đóquy hoạch bố trí đất phục vụ cho sản xuất công nghiệp tại Hàm Ninh để chuyển các làng nghề vào Cụm công nghiệp, bảo đảm môi trường và phục vụ du lịch. Đồng thời, dự kiến thu hút đầu tư lĩnh vực công nghiệp chế biến, công nghiệp phục vụ du lịch cho Thành phố Phú Quốc và xuất khẩu, với định hướng ngành nghề sản xuất như sau:
- Chế biến thực phẩm
- Tiểu thủ công nghiệp và làng nghề truyền thống
- Hàng tiêu dùng
- Chế biến các ngành nghề khác bằng kim loại
- Chế biến, bảo quản thủy sản
- Sản xuất các sản phẩm khác từ thủy sản
- Kho tàng, bến bãi
CCN Hàm Ninh sẽ được đầu tư đồng bộ kết cấu hạ tầng, hiện đại và hệ thống xử lý nước thải thân thiện với môi trường với tổng mức đầu tư khoảng 1.375 tỷ đồng. Dự án hoàn thành dự kiến sẽ tạo 2.000 việc làm cho người lao động địa phương, tăng nguồn thu cho ngân sách tỉnh, góp phần phát triển kinh tế - xã hội tại địa phương.
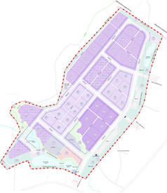
Bảng cơ cấu sử dụng đất Cụm Công nghiệp Hàm Ninh:
| Chức năng sử dụng đất | Diện tích (m2) | Tỷ lệ (%) |
| Đất hành chính dịch vụ | 8.823,0 | 1,5 |
| Đất nhà máy – kho tàng | 305.198,6 | 51,7 |
| Đất hạ tầng kỹ thuật | 11.785,4 | 2,0 |
| Đất cây xanh – mặt nước | 142.854,4 | 24,2 |
| Đất giao thông – bãi xe | 121.719,1 | 20,6 |
| Tổng cộng | 590.380,5 | 100 |

Bản đồ Quy hoạch sử dụng đất Cụm Công nghiệp Hàm Ninh – xã Hàm Ninh, TP. Phú Quốc
Nhằm triển khai dự án đúng tiến độ, hiệu quả, UBND thành phố Phú Quốc đã chỉ đạo các phòng ban, UBND xã Hàm Ninh quyết liệt triển khai các bước tiếp theo của dự án, nhất là công tác quản lý quy hoạch, lập phương án bồi thường, hỗ trợ, tái định cư trên địa bàn triển khai dự án và có hỗ trợ tích cực cho chủ đầu tư, Công ty CP DK Phú Quốc, triển khai thành công dự án như các chỉ đạo của Tỉnh Ủy, UBND tỉnh Kiên Giang.
Buổi công bố, công khai Quy hoạch dự án CCN Hàm Ninh diễn ra thành công tốt đẹp với sự ủng hộ của người dân tại địa phương và các bên liên quan.
Xem chi tiết:
- Quyết định số 58/QĐ-BQLKKTPQ ngày 25/03/2021
- Bản đồ Quy hoạch Kiến trúc, Cảnh quan CCN Hàm Ninh